Konzepte Angebot Profil Kontakt

VISITOR CENTER WIEN
Oberes Belvedere

Das neue, unterirdisch gelegene Besucherzentrum, bietet besuchern des historischen Oberen Belvederes in Wien eine einzigartige Begrüßung

2024, Wien, Oberes Belvedere

1 / 4
Perspektive
2 / 4
3D Isometrie
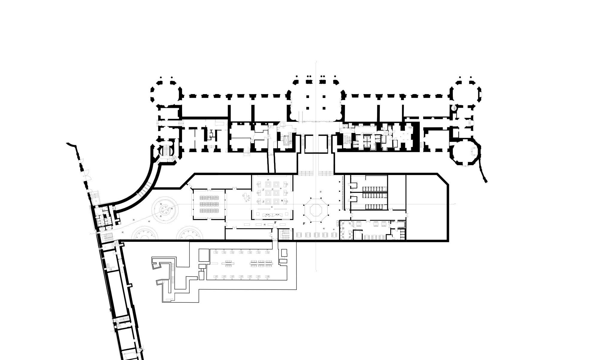
3 / 4
Grundriss UG
4 / 4
Lageplan

AUSLOBER:Österreichische Galerie Belvedere       TYP: Wohnungsbau   
ART: Realisierungswettbewerb     ORT: Wien, AT     JAHR: 2023/24

Der Entwurf zeigt auf wie Wohnen anders gedacht werden kann: Die Grundrisse können auf sich verändernde Gegebenheiten angepasst werden. Angeboten werden unterschiedliche Wohnungsgrößen mit atemberaubendem Blick über die Elbe. Der nachhaltige Baustoff Holz wird bei dem Projekt nicht nur für Verkleidungen verwandt sondern auch für Tragwerk und Fassade.

Wettbewerb Ergebnis


>> Nächstes Konzept

<< Home